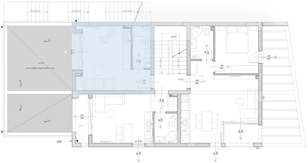
Položaj stana u objektu
Osnova stana
| ZATVORENI PROSTORI |
| 1a. Dnevna i noćna zona |
P= 19.24 m2 |
O= 21.34 m |
Keramika |
Akrilna latex boja |
Akrilna latex boja |
| 1b. Kupatilo |
P= 3.88 m2 |
O= 9.14 m |
Keramika |
Keramika |
Akrilna latex boja |
| Ukupno zatvoreni prostori P= 23.12 m2 |
| OTVORENI PROSTORI |
| 1c. Terasa |
P= 1.17 m2 |
O= 6.19 m |
Keramika |
Fasadex |
Rigips |
| UKUPNO STAN P= 24.29 m2 |
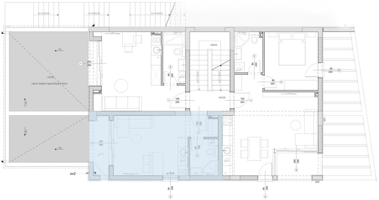
Položaj stana u objektu
Osnova stana
| ZATVORENI PROSTORI |
| 2a. Dnevna i noćna zona |
P= 17.85 m2 |
O= 19.54 m |
Keramika |
Akrilna latex boja |
Akrilna latex boja |
| 2b. Kupatilo |
P= 3.46 m2 |
O= 8.20 m |
Keramika |
Keramika |
Akrilna latex boja |
| Ukupno zatvoreni prostori P= 21.31 m2 |
| OTVORENI PROSTORI |
| 2c. Terasa |
P= 3.80 m2 |
O= 9.90 m |
Keramika |
Fasadex |
Rigips |
| UKUPNO STAN P= 25.11 m2 |
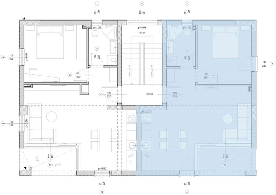
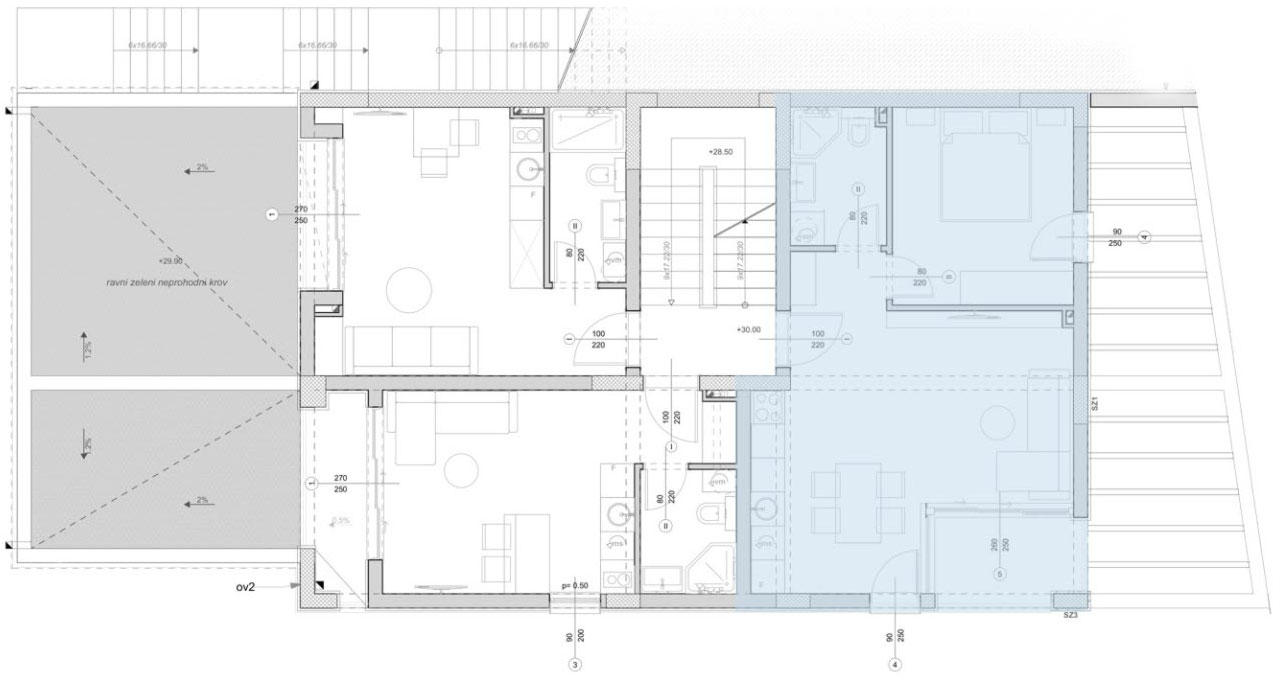
Položaj stana u objektu
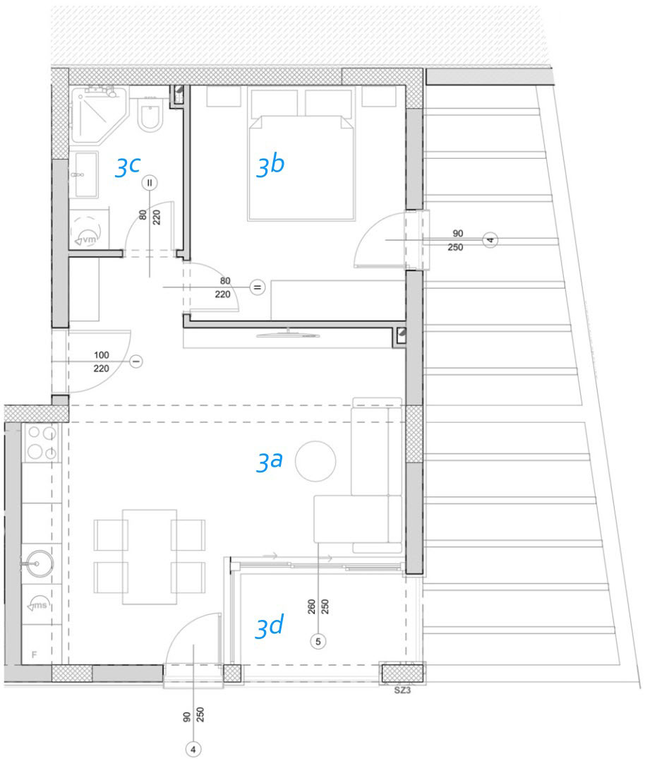
Osnova stana
| ZATVORENI PROSTORI |
| 3a. Dnevna, kuhinja, trpezarija, hodnik |
P= 24.88 m2 |
O= 23.34 m |
Keramika |
Akrilna latex boja |
Akrilna latex boja |
| 3b. Spavaća soba |
P= 10.93 m2 |
O= 13.24 m |
Keramika |
Akrilna latex boja |
Akrilna latex boja |
| 3c. Kupatilo |
P= 3.81 m2 |
O= 8.14 m |
Keramika |
Keramika |
Akrilna latex boja |
| Ukupno zatvoreni prostori P= 39.62 m2 |
| OTVORENI PROSTORI |
| 3d. Terasa |
P= 3.91 m2 |
O= 8.40 m |
Keramika |
Fasadex |
Rigips |
| UKUPNO STAN P= 43.53 m2 |
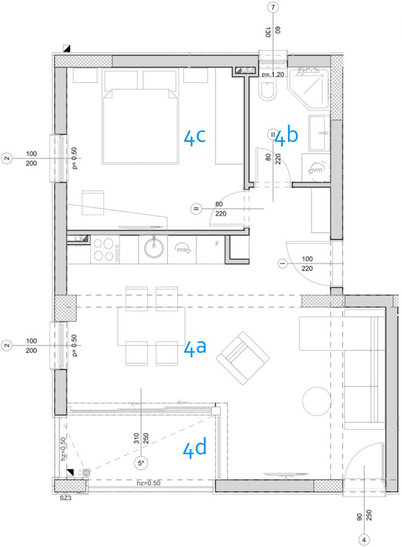
Položaj stana u objektu
Osnova stana
| ZATVORENI PROSTORI |
| 4a. Dnevna, kuhinja, trpezarija, hodnik |
P= 27.95 m2 |
O= 28.94 m |
Keramika |
Akrilna latex boja |
Akrilna latex boja |
| 4b. Kupatilo |
P= 3.76 m2 |
O= 8.04 m |
Keramika |
Keramika |
Akrilna latex boja |
| 4c. Spavaća soba |
P= 12.25 m2 |
O= 14.04 m |
Keramika |
Akrilna latex boja |
Akrilna latex boja |
| Ukupno zatvoreni prostori P= 43.69 m2 |
| OTVORENI PROSTORI |
| 4d. Terasa |
P= 4.90 m2 |
O= 9.70 m |
Keramika |
Fasadex |
Rigips |
| UKUPNO STAN P= 48.86 m2 |
Položaj stana u objektu
Osnova stana
| ZATVORENI PROSTORI |
| 5a. Dnevna, kuhinja, trpezarija, hodnik |
P= 26.35 m2 |
O= 27.82 m |
Keramika |
Akrilna latex boja |
Akrilna latex boja |
| 5b. Kupatilo |
P= 3.81 m2 |
O= 8.14 m |
Keramika |
Keramika |
Akrilna latex boja |
| 5c. Spavaća soba |
P= 10.93 m2 |
O= 13.24 m |
Keramika |
Akrilna latex boja |
Akrilna latex boja |
| Ukupno zatvoreni prostori P= 41.09 m2 |
| OTVORENI PROSTORI |
| 5d. Terasa |
P= 4.89 m2 |
O= 9.66 m |
Keramika |
Fasadex |
Rigips |
| UKUPNO STAN P= 45.98 m2 |
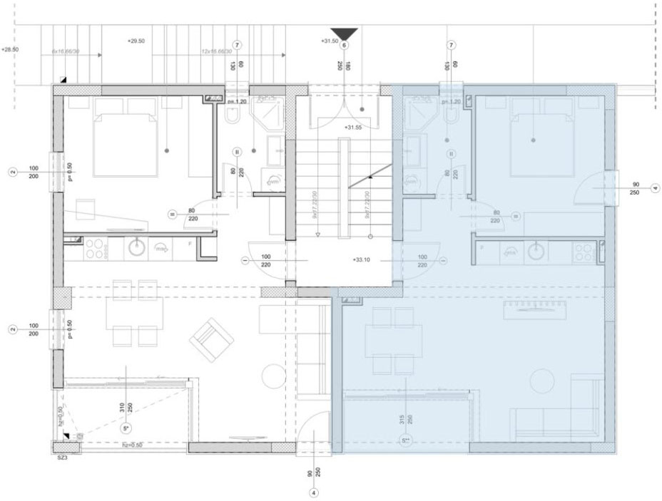
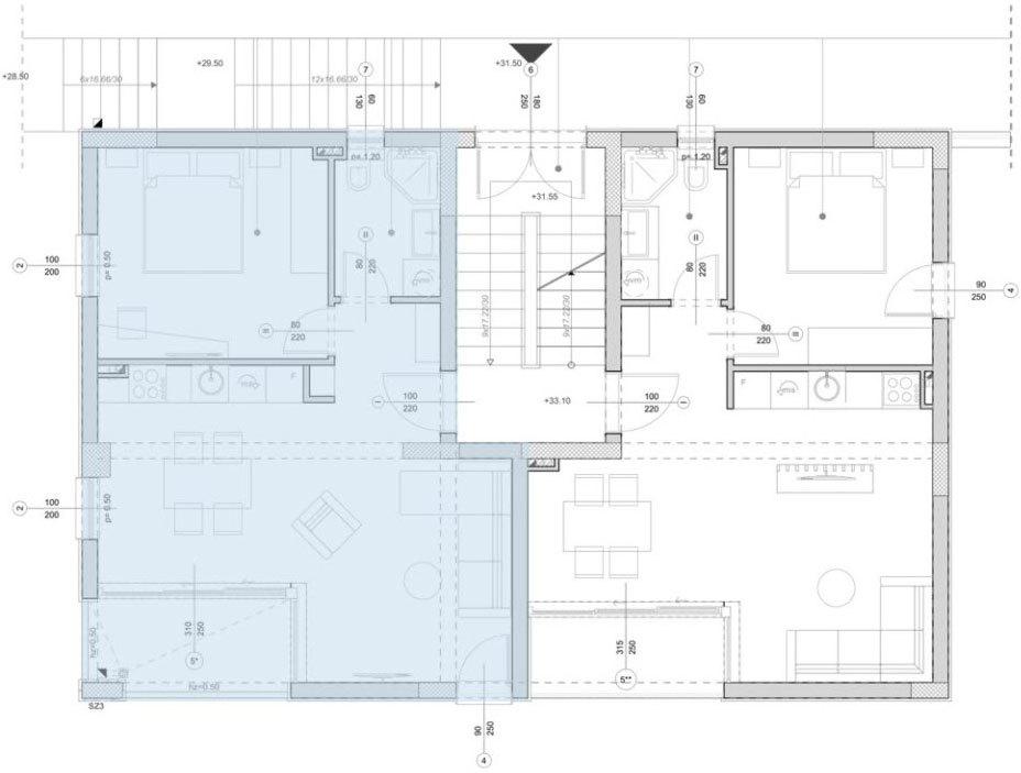
Položaj stana u objektu
Osnova stana
| ZATVORENI PROSTORI |
| 6a. Dnevna, kuhinja, trpezarija, hodnik |
P= 27.95 m2 |
O= 28.94 m |
Keramika |
Akrilna latex boja |
Akrilna latex boja |
| 6b. Kupatilo |
P= 3.76 m2 |
O= 8.04 m |
Keramika |
Keramika |
Akrilna latex boja |
| 6c. Spavaća soba |
P= 12.25 m2 |
O= 14.04 m |
Keramika |
Akrilna latex boja |
Akrilna latex boja |
| Ukupno zatvoreni prostori P= 43.96 m2 |
| OTVORENI PROSTORI |
| 6d. Terasa |
P= 4.90 m2 |
O= 9.70 m |
Keramika |
Fasadex |
Rigips |
| UKUPNO STAN P= 48.86 m2 |
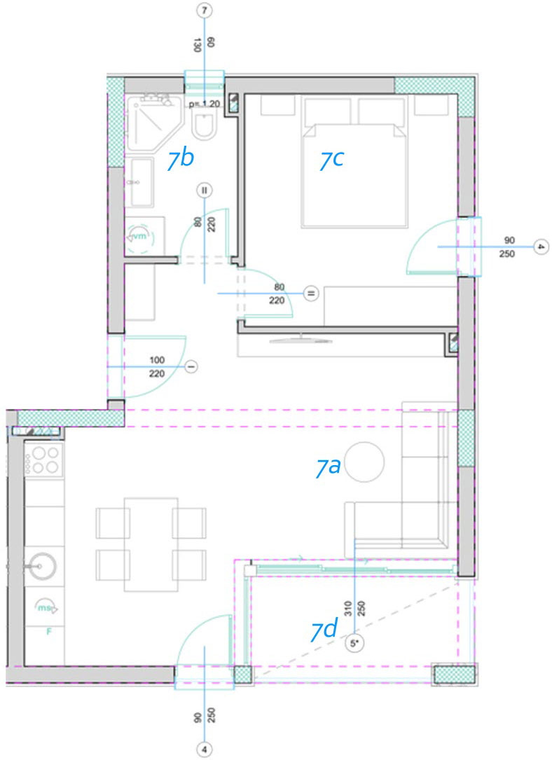
Položaj stana u objektu
Osnova stana
| ZATVORENI PROSTORI |
| 7a. Dnevna, kuhinja, trpezarija, hodnik |
P= 26.35 m2 |
O= 27.82 m |
Keramika |
Akrilna latex boja |
Akrilna latex boja |
| 7b. Kupatilo |
P= 3.81 m2 |
O= 8.14 m |
Keramika |
Keramika |
Akrilna latex boja |
| 7c. Spavaća soba |
P= 10.93 m2 |
O= 13.24 m |
Keramika |
Akrilna latex boja |
Akrilna latex boja |
| Ukupno zatvoreni prostori P= 41.09 m2 |
| OTVORENI PROSTORI |
| 7d. Terasa |
P= 4.89 m2 |
O= 9.66 m |
Keramika |
Fasadex |
Rigips |
| UKUPNO STAN P= 45.98 m2 |