Zgrada | BIANCA
1
Dvosoban stan
2
Jednosobnih stanova
2
Garsojnere
5
Garažnih parking mjesta
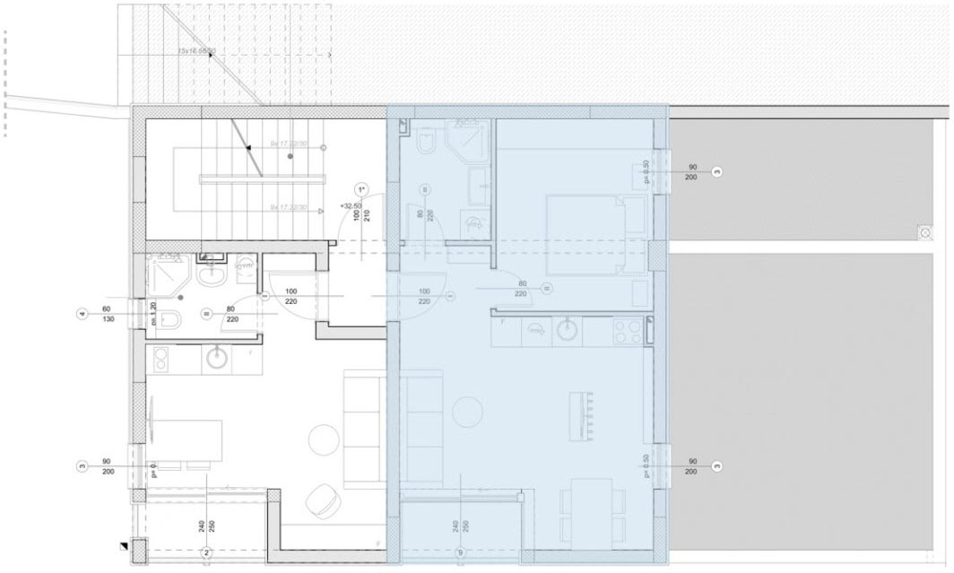
Položaj stana u objektu
Osnova stana
| ZATVORENI PROSTORI | |||||
|---|---|---|---|---|---|
| 1a. Dnevna i noćna zona | P= 17.67 m2 | O= 21.04 m | Keramika | Akrilna latex boja | Akrilna latex boja |
| 1b. Kupatilo | P= 3.30 m2 | O= 8.04 m | Keramika | Keramika | Akrilna latex boja |
| Ukupno zatvoreni prostori P= 20.97 m2 | |||||
| OTVORENI PROSTORI | |||||
| 1c. Terasa | P= 2.84 m2 | O= 7.50 m | Keramika | Fasadex | Rigips |
| UKUPNO STAN P= 23.81 m2 | |||||
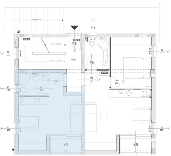
Položaj stana u objektu
Osnova stana
| ZATVORENI PROSTORI | |||||
|---|---|---|---|---|---|
| 2a. Dnevna, kuhinja, trpezarija, hodnik | P= 22.51 m2 | O= 21.84 m | Keramika | Akrilna latex boja | Akrilna latex boja |
| 2b. Kupatilo | P= 3.94 m2 | O= 8.24 m | Keramika | Keramika | Akrilna latex boja |
| 2c. Spavaća soba | P= 11.44 m2 | O= 13.84 m | Keramika | Akrilna latex boja | Akrilna latex boja |
| Ukupno zatvoreni prostori P= 37.89 m2 | |||||
| OTVORENI PROSTORI | |||||
| 2c. Terasa | P= 2.76 m2 | O= 6.66 m | Keramika | Fasadex | Rigips |
| UKUPNO STAN P= 40.65 m2 | |||||
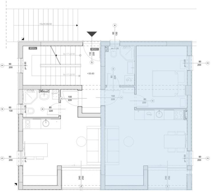
Položaj stana u objektu
Osnova stana
| ZATVORENI PROSTORI | |||||
|---|---|---|---|---|---|
| 3a. Dnevna i noćna zona | P= 17.67 m2 | O= 21.04 m | Keramika | Akrilna latex boja | Akrilna latex boja |
| 3b. Kupatilo | P= 3.30 m2 | O= 8.04 m | Keramika | Keramika | Akrilna latex boja |
| Ukupno zatvoreni prostori P= 20.97 m2 | |||||
| OTVORENI PROSTORI | |||||
| 3d. Terasa | P= 2.76 m2 | O= 6.70 m | Keramika | Fasadex | Rigips |
| UKUPNO STAN P= 23.73 m2 | |||||
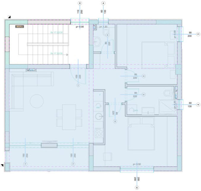
Položaj stana u objektu
Osnova stana
| ZATVORENI PROSTORI | |||||
|---|---|---|---|---|---|
| 4a. Dnevna, kuhinja, trpezarija, hodnik | P= 21.78 m2 | O= 21.84 m | Keramika | Akrilna latex boja | Akrilna latex boja |
| 4b. Kupatilo | P= 3.94 m2 | O= 8.24 m | Keramika | Keramika | Akrilna latex boja |
| 4c. Spavaća soba | P= 11.44 m2 | O= 13.84 m | Keramika | Akrilna latex boja | Akrilna latex boja |
| Ukupno zatvoreni prostori P= 37.16 m2 | |||||
| OTVORENI PROSTORI | |||||
| 4c. Terasa | P= 2.82 m2 | O= 7.10 m | Keramika | Fasadex | Rigips |
| UKUPNO STAN P= 39.98 m2 | |||||
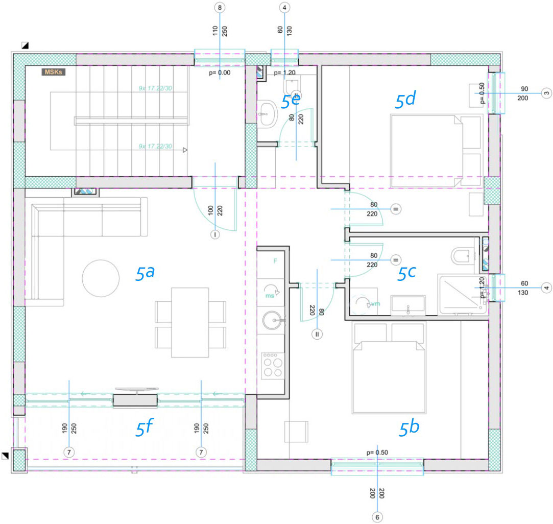
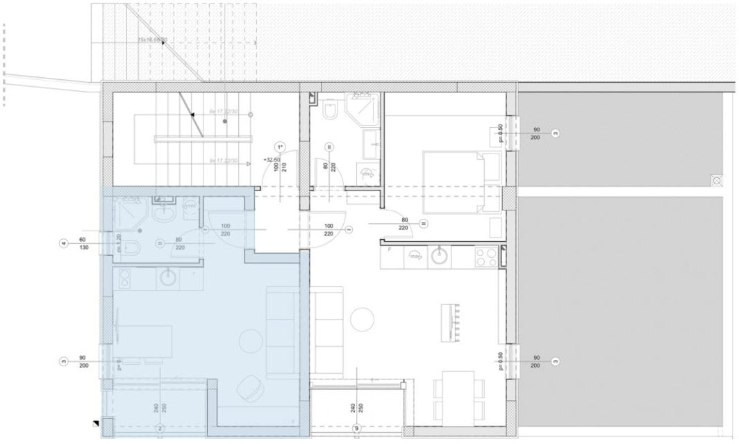
Položaj stana u objektu
Osnova stana
| ZATVORENI PROSTORI | |||||
|---|---|---|---|---|---|
| 5a. Dnevna, kuhinja, trpezarija, hodnik | P= 27.95 m2 | O= 27.54 m | Keramika | Akrilna latex boja | Akrilna latex boja |
| 5b. Spavaća soba | P= 14.30 m2 | O= 17.23 m | Keramika | Akrilna latex boja | Akrilna latex boja |
| 5c. Kupatilo | P= 4.66 m2 | O= 9.24 m | Keramika | Keramika | Akrilna latex boja |
| 5d. Spavaća soba | P= 11.98 m2 | O= 14.44 m | Keramika | Akrilna latex boja | Akrilna latex boja |
| 5e. Toalet | P= 1.75 m2 | O= 5.34 m | Keramika | Keramika | Akrilna latex boja |
| Ukupno zatvoreni prostori P= 60.64 m2 | |||||
| OTVORENI PROSTORI | |||||
| 5f. Terasa | P= 6.47 m2 | O= 12.20 m | Keramika | Fasadex | Rigips |
| UKUPNO STAN P= 67.11 m2 | |||||

