Zgrada | ROSSA
1
Dvosoban stan
10
Garsonjere
15
Garažnih parking mjesta
Položaj stana u objektu
Osnova stana
| ZATVORENI PROSTORI | |||||
|---|---|---|---|---|---|
| 1a. Dnevna i noćna zona | P= 21.90 m2 | O= 25.94 m | Keramika | Akrilna latex boja | Akrilna latex boja |
| 1b. Kupatilo | P= 3.67 m2 | O= 8.04 m | Keramika | Keramika | Akrilna latex boja |
| Ukupno zatvoreni prostori P= 25.57 m2 | |||||
| OTVORENI PROSTORI | |||||
| 1c. Terasa | P= 2.86 m2 | O= 7.03 m | Keramika | Fasadex | Rigips |
| UKUPNO STAN P= 28.43 m2 | |||||
Položaj stana u objektu
Osnova stana
| ZATVORENI PROSTORI | |||||
|---|---|---|---|---|---|
| 8a. Dnevna i noćna zona | P= 29.63 m2 | O= 25.94 m | Keramika | Akrilna latex boja | Akrilna latex boja |
| 8b. Kupatilo | P= 4.16 m2 | O= 8.04 m | Keramika | Keramika | Akrilna latex boja |
| Ukupno zatvoreni prostori P= 33.79 m2 | |||||
| OTVORENI PROSTORI | |||||
| 8c. Terasa | P= 3.57 m2 | O= 6.90 m | Keramika | Fasadex | Rigips |
| UKUPNO STAN P= 37.36 m2 | |||||
Položaj stana u objektu
Osnova stana
| ZATVORENI PROSTORI | |||||
|---|---|---|---|---|---|
| 6a. Dnevna i noćna zona | P= 23.94 m2 | O= 24.44 m | Keramika | Akrilna latex boja | Akrilna latex boja |
| 6b. Kupatilo | P= 3.88 m2 | O= 8.64 m | Keramika | Keramika | Akrilna latex boja |
| Ukupno zatvoreni prostori P= 27.82 m2 | |||||
| OTVORENI PROSTORI | |||||
| 6c. Terasa | P= 6.65 m2 | O= 12.20 m | Keramika | Fasadex | Rigips |
| UKUPNO STAN P= 34.47 m2 | |||||
Položaj stana u objektu
Osnova stana
| ZATVORENI PROSTORI | |||||
|---|---|---|---|---|---|
| 4a. Dnevna i noćna zona | P= 21.90 m2 | O= 25.94 m | Keramika | Akrilna latex boja | Akrilna latex boja |
| 4b. Kupatilo | P= 3.67 m2 | O= 8.04 m | Keramika | Keramika | Akrilna latex boja |
| Ukupno zatvoreni prostori P= 25.57 m2 | |||||
| OTVORENI PROSTORI | |||||
| 4c. Terasa | P= 2.93 m2 | O= 6.90 m | Keramika | Fasadex | Rigips |
| UKUPNO STAN P= 28.50 m2 | |||||
Položaj stana u objektu
Osnova stana
| ZATVORENI PROSTORI | |||||
|---|---|---|---|---|---|
| 5a. Dnevna i noćna zona | P= 29.66 m2 | O= 35.18 m | Keramika | Akrilna latex boja | Akrilna latex boja |
| 5b. Kupatilo | P= 3.61 m2 | O= 8.04 m | Keramika | Keramika | Akrilna latex boja |
| Ukupno zatvoreni prostori P= 33.27 m2 | |||||
| OTVORENI PROSTORI | |||||
| 5c. Terasa | P= 4.05 m2 | O= 9.10 m | Keramika | Fasadex | Rigips |
| UKUPNO STAN P= 37.32 m2 | |||||
Položaj stana u objektu
Osnova stana
| ZATVORENI PROSTORI | |||||
|---|---|---|---|---|---|
| 6a. Dnevna i noćna zona | P= 23.94 m2 | O= 24.44 m | Keramika | Akrilna latex boja | Akrilna latex boja |
| 6b. Kupatilo | P= 3.88 m2 | O= 8.64 m | Keramika | Keramika | Akrilna latex boja |
| Ukupno zatvoreni prostori P= 27.82 m2 | |||||
| OTVORENI PROSTORI | |||||
| 6c. Terasa | P= 6.65 m2 | O= 12.20 m | Keramika | Fasadex | Rigips |
| UKUPNO STAN P= 34.47 m2 | |||||
Položaj stana u objektu
Osnova stana
| ZATVORENI PROSTORI | |||||
|---|---|---|---|---|---|
| 4a. Dnevna i noćna zona | P= 21.90 m2 | O= 25.94 m | Keramika | Akrilna latex boja | Akrilna latex boja |
| 4b. Kupatilo | P= 3.67 m2 | O= 8.04 m | Keramika | Keramika | Akrilna latex boja |
| Ukupno zatvoreni prostori P= 25.57 m2 | |||||
| OTVORENI PROSTORI | |||||
| 4c. Terasa | P= 2.93 m2 | O= 6.90 m | Keramika | Fasadex | Rigips |
| UKUPNO STAN P= 28.50 m2 | |||||
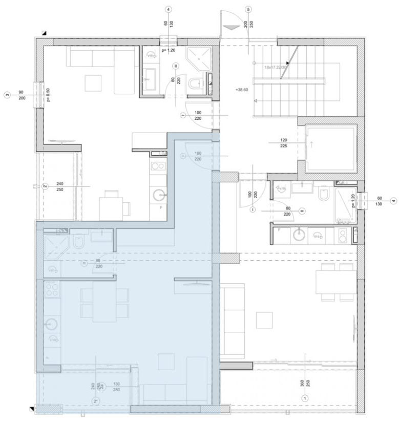
Položaj stana u objektu
Osnova stana
| ZATVORENI PROSTORI | |||||
|---|---|---|---|---|---|
| 8a. Dnevna i noćna zona | P= 29.63 m2 | O= 25.94 m | Keramika | Akrilna latex boja | Akrilna latex boja |
| 8b. Kupatilo | P= 4.16 m2 | O= 8.04 m | Keramika | Keramika | Akrilna latex boja |
| Ukupno zatvoreni prostori P= 33.79 m2 | |||||
| OTVORENI PROSTORI | |||||
| 8c. Terasa | P= 3.57 m2 | O= 6.90 m | Keramika | Fasadex | Rigips |
| UKUPNO STAN P= 37.36 m2 | |||||
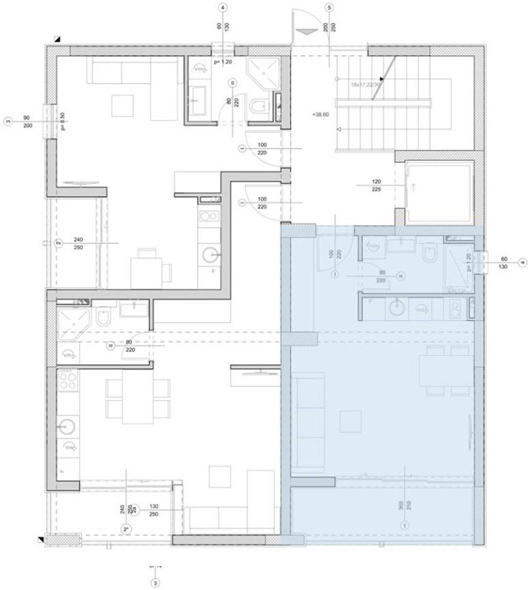
Položaj stana u objektu
Osnova stana
| ZATVORENI PROSTORI | |||||
|---|---|---|---|---|---|
| 6a. Dnevna i noćna zona | P= 23.94 m2 | O= 24.44 m | Keramika | Akrilna latex boja | Akrilna latex boja |
| 6b. Kupatilo | P= 3.88 m2 | O= 8.64 m | Keramika | Keramika | Akrilna latex boja |
| Ukupno zatvoreni prostori P= 27.82 m2 | |||||
| OTVORENI PROSTORI | |||||
| 6c. Terasa | P= 6.65 m2 | O= 12.20 m | Keramika | Fasadex | Rigips |
| UKUPNO STAN P= 34.47 m2 | |||||
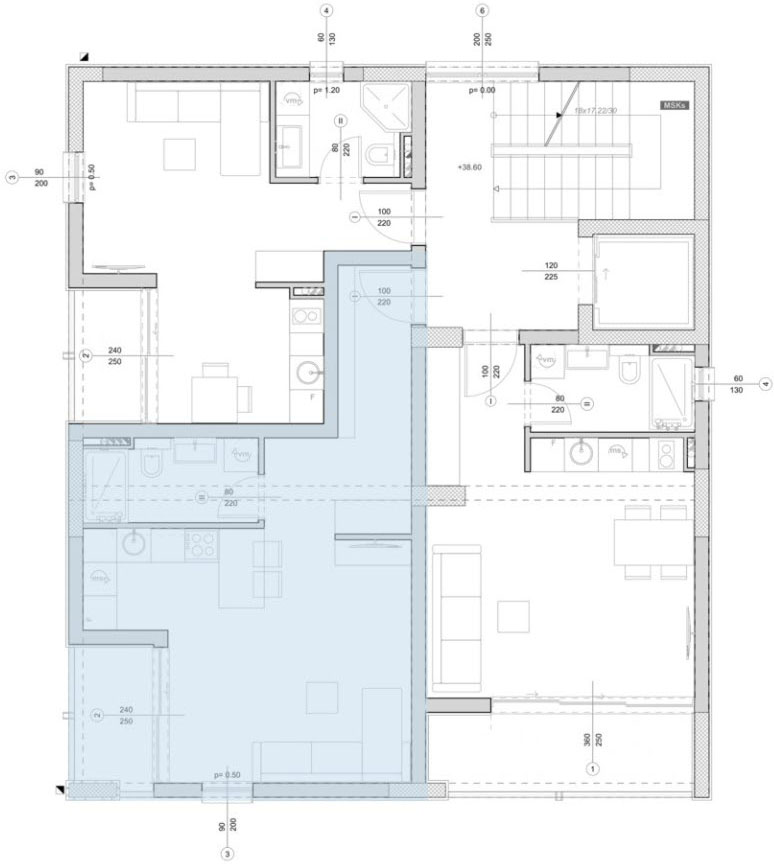
Položaj stana u objektu
Osnova stana
| ZATVORENI PROSTORI | |||||
|---|---|---|---|---|---|
| 10a. Dnevna i noćna zona | P= 22.83 m2 | O= 24.74 m | Keramika | Akrilna latex boja | Akrilna latex boja |
| 10b. Kupatilo | P= 3.67 m2 | O= 8.04 m | Keramika | Keramika | Akrilna latex boja |
| Ukupno zatvoreni prostori P= 26.50 m2 | |||||
| OTVORENI PROSTORI | |||||
| 10c. Terasa | P= 2.93 m2 | O= 6.90 m | Keramika | Fasadex | Rigips |
| UKUPNO STAN P= 29.43 m2 | |||||
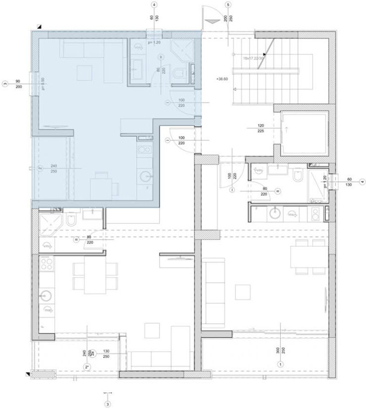
Položaj stana u objektu
Osnova stana
| ZATVORENI PROSTORI | |||||
|---|---|---|---|---|---|
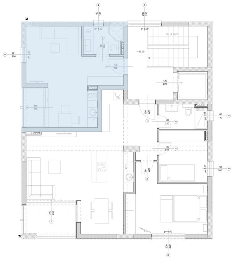
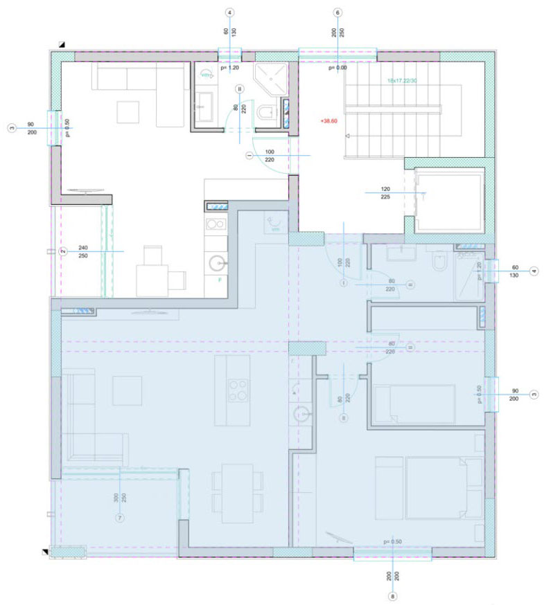
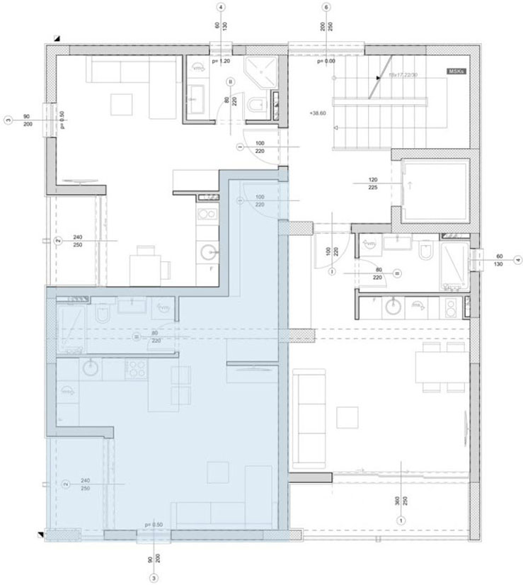
| 11a. Dnevna, kuhinja, trpezarija, hodnik | P= 38.90 m2 | O= 37.34 m | Keramika | Akrilna latex boja | Akrilna latex boja |
| 11b. Kupatilo | P= 3.88 m2 | O= 8.64 m | Keramika | Keramika | Akrilna latex boja |
| 11c. Spavaća soba | P= 8.49 m2 | O= 11.74 m | Keramika | Akrilna latex boja | Akrilna latex boja |
| 11d. Spavaća soba | P= 15.66 m2 | O= 18.24 m | Keramika | Akrilna latex boja | Akrilna latex boja |
| Ukupno zatvoreni prostori P= 66.93 m2 | |||||
| OTVORENI PROSTORI | |||||
| 11e. Terasa | P= 5.96 m2 | O= 9.90 m | Keramika | Fasadex | Rigips |
| UKUPNO STAN P= 72.89 m2 | |||||

